Do I Need A Design Consultation?
20+ years ago, before we got started with our construction journey, I know we certainly had no idea whether we needed a design consultation, and we don't expect you all to know right off the bat either!
Streling Construction


So Who Needs A Design Consult?
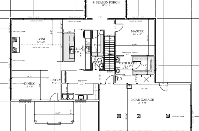
Having professional blueprints drafted and engaging in design consultation are essential steps in any home improvement project. These blueprints serve as a detailed roadmap that ensures every aspect of the renovation aligns with your vision, adheres to building codes, and maximizes space effectively. Professional designers bring expertise that can enhance both functionality and aesthetics, helping homeowners avoid costly mistakes and reworks. During the consultation process, you gain valuable insights into trends, materials, and techniques that can elevate your project and increase your property's value. By investing time and resources into these initial stages, homeowners set a solid foundation for a successful renovation, ensuring that the end result not only meets their needs but also reflects their personal style. In the long run, this thoughtful approach can lead to a smoother process, minimizing stress and ensuring the realization of a beautifully improved home.
Services
© 2025. All rights reserved. Powered By RWB Marketing.
MN Contractors License #BC681298


